Зачем нужен технический план помещения?
Значение технического плана помещения
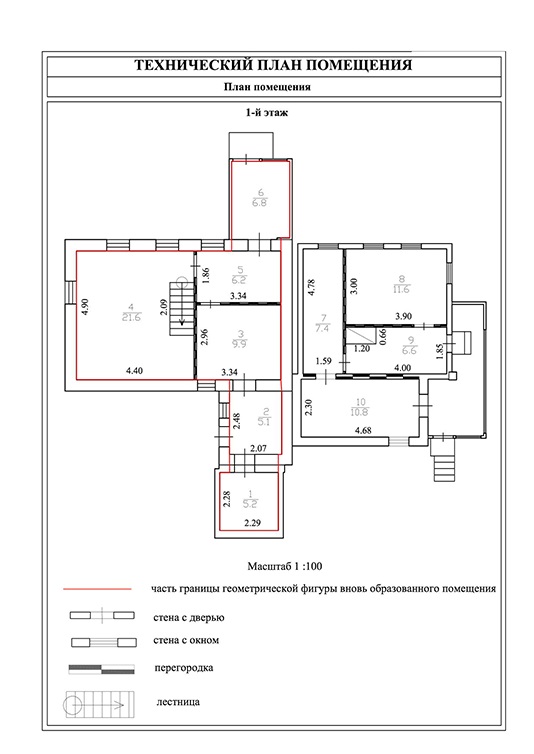
Технический план помещения – это документ, который содержит подробную информацию о конструкции, планировке и оборудовании помещения. Он необходим для правильного использования и эксплуатации объекта, а также для проектирования и реконструкции здания.
Основные составляющие технического плана
В техническом плане помещения обычно указывается планировка помещения, расположение стен, дверей, окон, мебели и оборудования. Также в нем могут быть указаны технические характеристики помещения, такие как площадь, высота потолков, тип полов и стен.
Цели составления технического плана
Основная цель составления технического плана помещения – обеспечить информацией о его конструкции и оборудовании, что позволяет оптимизировать использование помещения, планировать его реконструкцию или ремонт, а также проводить технические обследования и экспертизы.
Применение технического плана
Технический план помещения используется при продаже, аренде или передаче в собственность помещения, при проведении технических обследований и экспертиз, а также при проектировании и строительстве здания. Он является важным инструментом для специалистов в области архитектуры, строительства и дизайна интерьера.
